Logo Landschaftsarchitektur Voerkelius

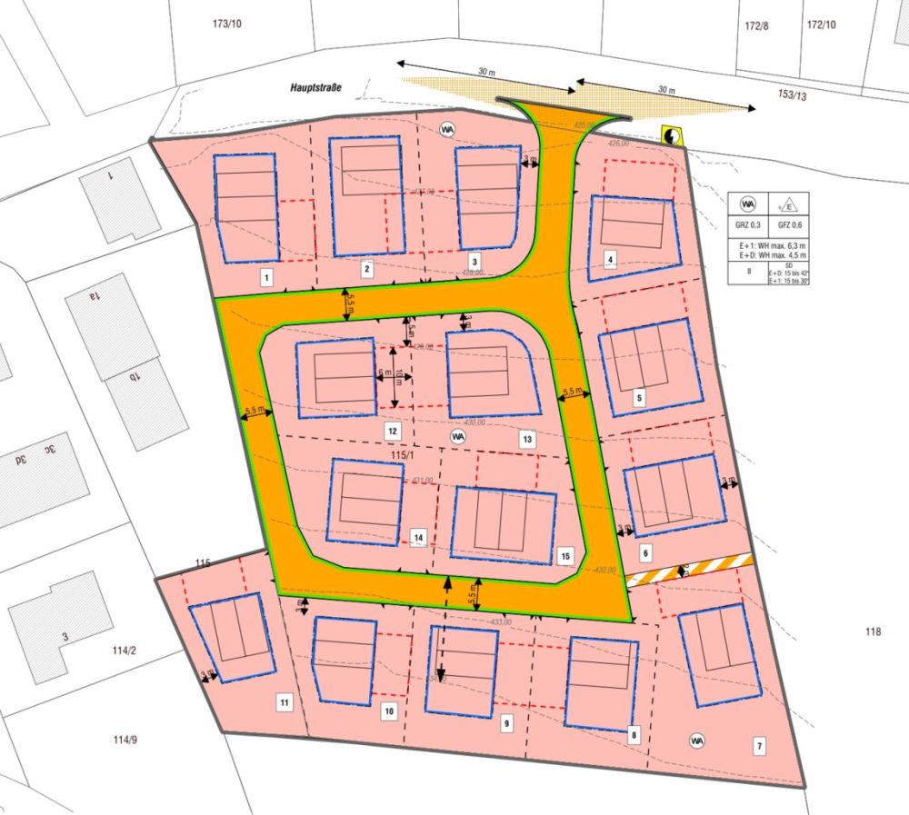
Bebauungsplan für ein allgemeines Wohngebiet in Pettendorf

Hausdächer

Projektbeschreibung:

In der Gemeinde Pettendorf im Landkreis Regensburg, unmittelbar am nordwestlichen Stadtrand von Regensburg gelegen, sollte 2020/21 neues Wohnbauland geschaffen werden, um so dem steigenden Bedarf an verfügbaren Bauland entgegen zu kommen. Aus diesem Grund plante „landschaftsarchitektur VOERKELIUS“ ein Allgemeines Wohngebiet mit einer Erschließung von 15 Wohnbaugrundstücken auf einer Fläche von 0,9 ha. Somit konnte eine städtebaulich geordnete Entwicklung des Ortes gewährleistet werden.

In Abstimmung mit den Gemeinden entwickelt das Büro passende Gestaltungsvorschriften um die Neubauten in ihre Umgebung gut einzugliedern. Im Bebauungsplan werden deshalb Festsetzungen getroffen, welche Mindestanforderungen an die Gestaltung der Baukörper und Nebenflächen stellen. Diese lassen genügend Raum für individuelle architektonische Lösungen zu und sichern gleichzeitig eine stimmige Gestaltung des Gebietes.

Bilder:

Plan